Renovieren und Wohlfühlen! Einfamilienhaus mit Weitblick

Eckdaten

Kaufpreis 288.000 €
Zimmer 5
Schlafzimmer 3
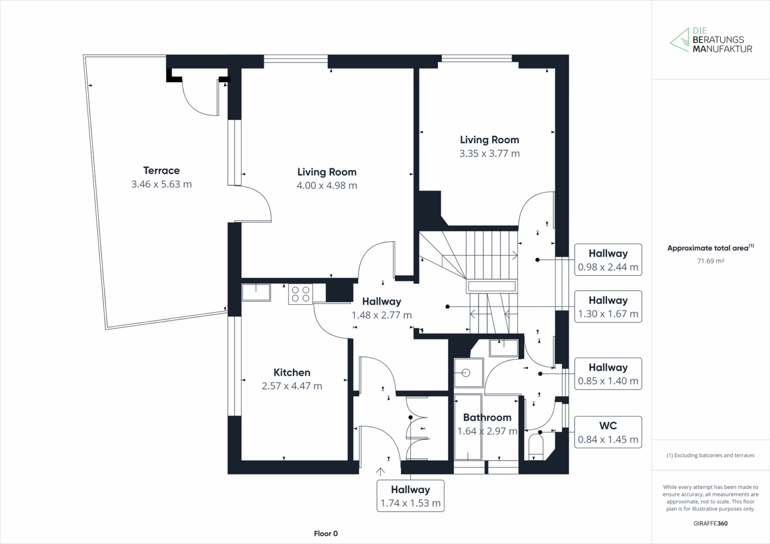
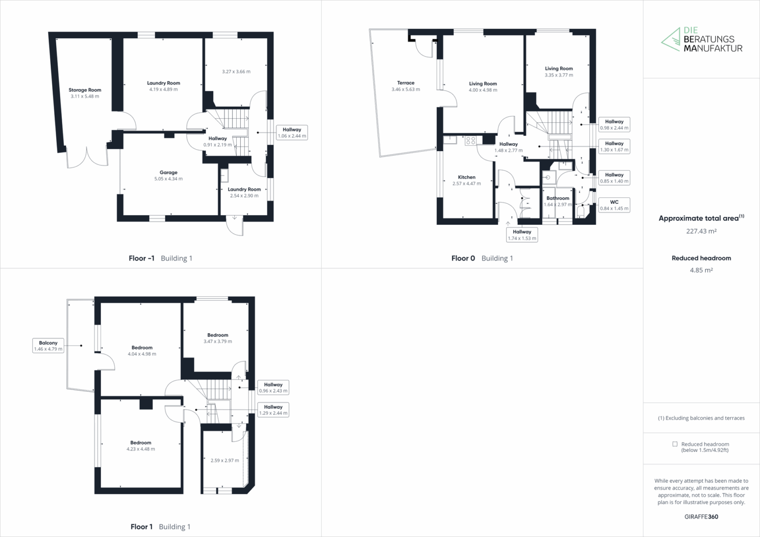
Wohnfläche ca. 124 m²

Objektbeschreibung

Großes Einfamilienhaus mit fünf Zimmern und Einbauküche in Wackersdorf zu verkaufen!
Bei dem Einfamilienhaus handelt es sich um eine attraktive Immobilie, die ab sofort erworben werden kann. Neben fünf wunderschönen und geräumigen Zimmern gibt es ein Gäste-WC, einen Hauswirtschaftsraum und eine Werkstatt. Das Haus wurde im Jahr 1961 erbaut und verfügt bereits über Doppelverglasung der Fenster.
Besonders attraktiv ist die großzügige Grundstücksgröße mit 666 Quadratmetern in Hanglage.
Der Gesamtpreis des Objekts beträgt 288.000 Euro.

Standort
92442 Wackersdorf
Wohnfläche
ca. 124 m²
Grundstücksfläche
ca. 666 m²
Anzahl Zimmer
5
Anzahl Schlafzimmer
3
Anzahl Badezimmer
1
Anzahl Balkon / Terrasse
1
Anzahl Stellplätze
1
Kaufpreis
288.000 €
Provisionspflichtig
Ja
Käuferprovision
3,57
Verfügbar ab
sofort
Baujahr
1961
Verkaufstatus
Verkauft

Ausstattung

Der überwiegende Anteil des Hauses verfügt über einen Teppichboden, Ausnahmen hiervon sind das Wohnzimmer und das Schlafzimmer. Diese beiden Räume wurden mit einem Parkettboden ausgestattet.

Balkon
Ja
Stellplatz
Ja
Dusche
Ja
Bad mit Badewanne
Ja
Einbauküche
Ja
Parkett
Ja
Garage
Ja
Parken im Freien
Ja
Keller
Ja
Gäste WC
Ja

Lage

Das Objekt befindet sich in Wackersdorf. In der Umgebung liegen die Orte Schwandorf und Schwarzenfeld. Fußläufig vom Objekt entfernt erreichen Sie zwei Restaurants und eine Bäckerei. Auch eine Bar, eine Apotheke und einen Tierarzt gibt es in der Nähe. Weiter entfernt finden Sie außerdem diverse Einkaufsmöglichkeiten. Einige Museen, eine gute medizinische Versorgung, verschiedene Erholungs- und Sportangebote (u. a. einige Fitnessstudios) und interessante Ausgehmöglichkeiten gibt es schließlich ebenfalls im größeren Umkreis.

Wackersdorf befindet sich im Herzen des Oberpfälzer Seenlands. Mit dem Steinberger und Murner See inkl. der Erlebnis Holzkugel als Aussichtsturm, begeistert diese Region als Ausflugs- und Urlaubsziel Groß & Klein

Provision:
Wir weisen daraufhin, dass bei einer notariellen Beurkundung der Immobilie eine Provision in Höhe von 3,57% inkl. 19% Mehrwertsteuer für den Käufer fällig wird.
Haftungsausschluss:
Eine Haftung für die Richtigkeit oder Vollständigkeit der Angaben werden nicht übernommen. Alle Angaben erfolgten auf Grundlage der Informationen unseres Kunden. Alle Immobilienangebote sind freibleibend und vorbehaltlich Irrtümer, Zwischenverkauf- und Vermietung oder sonstiger Zwischenverwertung.
Unser Service für Sie:
Sie sind auf der Suche nach einer Immobilie?
Gerne nehmen wir hierfür Ihr Suchprofil auf und werden Ihnen bei der Suche nach einer geeigneten Immobilie behilflich sein.
Sie sind Immobilieneigentümer und planen Ihre Immobilie oder Grundstück zu verkaufen?
Lassen Sie sich gerne von uns eine kostenlose Immobilienwertermittlung erstellen, hierfür arbeiten wir mit dem Marktführer und Spezialisten für Wertermittlungen zusammen.
Sprechen Sie uns hierzu an oder schreiben uns eine Email.
Gerne führen wir mit Ihnen eine individuelle Einzelbesichtigung durch. Vereinbaren Sie hierzu einen Besichtigungstermin mit uns. Wir freuen uns auf Sie.

Ihr Immobilienexperte

Kontaktdaten

Herr Jaksch, Oliver
Herr Jaksch, Oliver
Gotzmannstraße 9
90542 Eckental
Zeige 1 bis 3 von 51 Immobilien
1 2 3 17